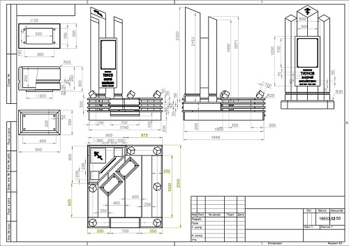
Мемориальный комплекс МК-62
3D - модель
Фото готового изделия
Под артикулом МК-62 гранитная мастерская представляет необычный мемориальный комплекс, дизайн которого выделяется на кладбище от классически оформленных захоронений. Этот проект – целое архитектурное произведение, поскольку все его элементы являются сложными формами и их композициями. В этом комплексе всё несёт в себе определённый смысл – т.к. комплекс устанавливался полковнику, за основу были взяты количество звёзд на погонах, поэтому стела выполнена в виде трех треугольных столбов – символизирующих 3 звезды на погоне полковника. Основа комплекса – монолитный железобетонный фундамент с полной облицовкой гранитными плитами. Сверху монолитного фундамента выполненный гранитный цоколь, опять же состоящий из 3 параллельных секций, сверху которого располагается 6 гранитных кубов – общее количество звёзд на погонах.